Banner NCH-Emden 2
Web Design
Klinikum Emden
Stadt Emden

Und so finden Sie uns:

Die Praxis befindet sich direkt im Klinikum Emden, Bolardusstraße 20, und zwar in der ersten Etage. Wenn Sie das Klinikum durch den Haupteingang betreten, erreichen Sie uns über den Fahrstuhl am hinteren Ende der Eingangshalle. In der ersten Etage wenden Sie sich nach rechts, durch die Glastür und dann direkt nach links. Die Räumlichkeiten der Praxis liegen am Anfang des Flures, gleich rechts ist der Empfang. Aus Gründen der Diskretion ist die Tür geschlossen, bitte klingeln Sie. Die Klingel befindet sich rechts neben der Tür, einmal klingeln ist ausreichend.  Außerdem möchten wir Sie bitten, einzeln einzutreten.

Parkplätze finden sich in ausreichender Zahl auf dem Gelände des Klinikums.

 

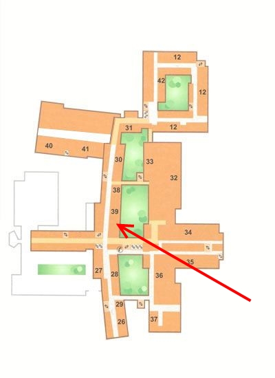
Lageplan 01
Lageplan 02 a

Erdgeschoss:

1. Eingangshalle
2. Rezeption
3. Café Kess
4. Zentrale Patientenaufnahme (ZPA)
5. Chirurgische Ambulanz
6. Sozialdienst / Seelsorger
7. Poststelle
8. Kernspintomographie
9. Physikalische Therapie 
10. Gottesdienst
11. ForumKlinikum
12. Psychiatrie
13. Raum der Stille
14. Kasse
15. Verwaltung / Pflegedirektion
16. Konferrenzraum
17. Liegendauffahrt
18. Küche
19. Wirtschaftsabteilung
20. Apotheke
21. Zentrale Sterilgutversorgungsabteilung
22. Personalspeiseraum
23. Kinderspielplatz
24. Werkstatt
25. Anlieferung

1. Obergeschoss:

26. Endoskopie
27. EKG
28. Ambulanz Med. Klinik
29. Echokardiographie
30. EEG
31. Psychiatrische Tagesklinik
32. Zentrale OP-Abteilung
33. Ambulantes OP-Zentrum
34. Intensiv
35. Stroke Unit / Schlaganfallstation
36. Röntgendiagnostik
37. Computertomographie
38. Anästhesie Ambulanz
39. Neurochirurgie / Neurologie
40. EDV
41. Betriebsrat
42. Gesundheits- und Krankenpflegeschule

Nach oben

[Home] [Medizinisches] [Die Praxis] [Kontakt] [Impressum]

(c) Dr. J. Janus

Letzte Aktualisierung: 29.03.2017